Coming Soon

The Crofter

Semi-Detached House

Part of the Loomcroft development

Prices from To be confirmed for a 40% share

Tenure

Shared Ownership

No of bedrooms

3

No of bathrooms

2

Council Tax Band

TBC

The property

The Crofter is a three-bedroom semi-detached home that cultivates the perfect balance of rural charm and modern living.

Offering a unique opportunity to secure a brand new home through Shared Ownership in Keresley.

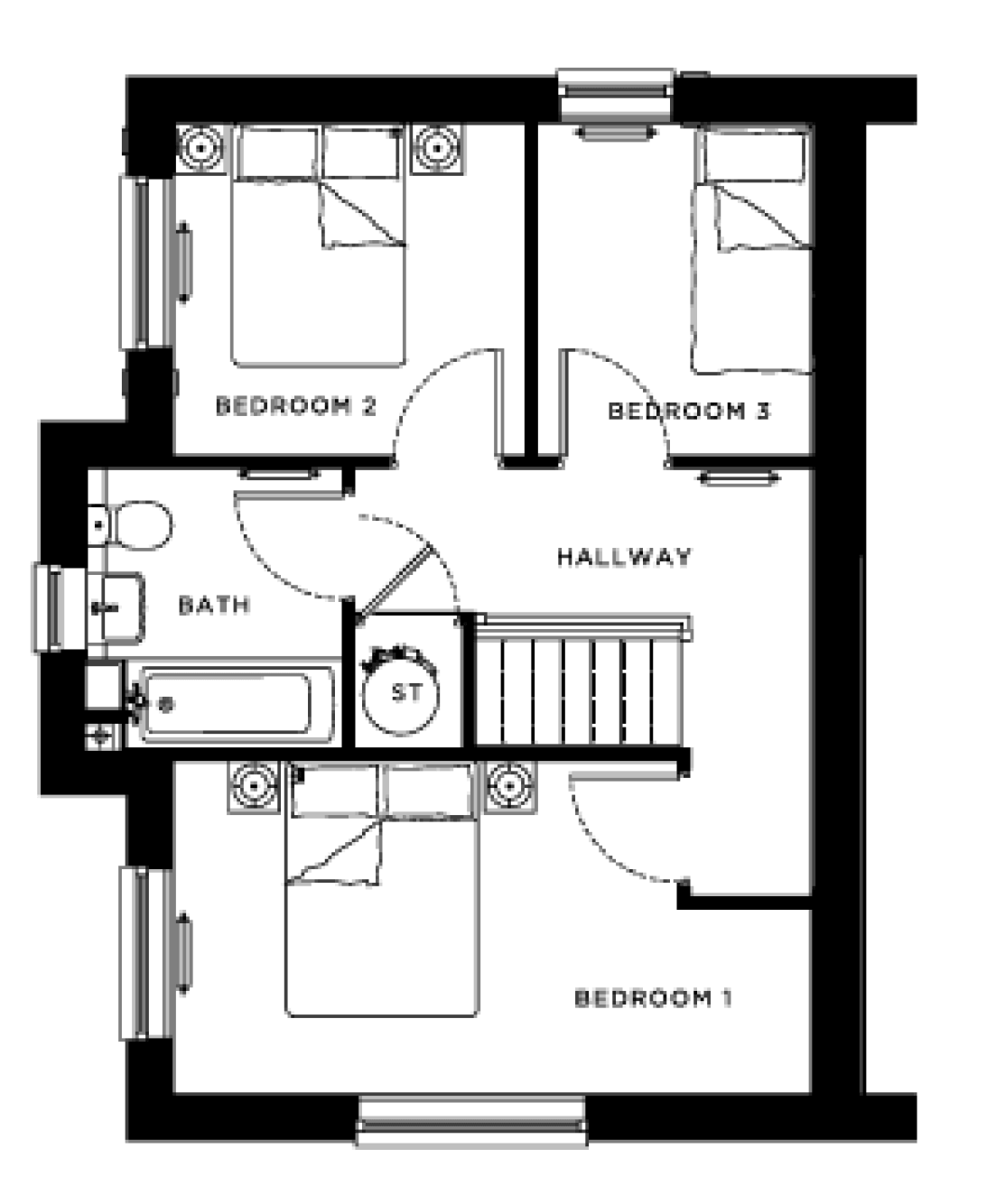
On Entering the property you have a spacious entrance hall in the middle of the home, with the stairs and the downstairs W/C.

On one side of the property is the open Living/Dining area, with access to the garden from there.On the other side of the property is a spacious living area.

Moving to the first floor there is a landing area, with access to the spacious master bedroom with the family bathroom between that and the two bedrooms

Features and description

  • 10 year build warranty
  • Electric Charging Point
  • Downstairs WC
  • Stainless steel oven, hob & extractor
  • Allocated parking
  • Double glazed windows
  • Plumbing for washing machine

Loomcroft Development Brochure

For full availability, housetypes and pricing at the Loomcroft development, download the development brochure.

Download Development Brochure
Start of floor plan slider, skip slider
  • The Crofter - Ground floor.png

    Floor plan

    • The Crofter - First floor.png

      Floor plan

      Showing 1 of 2

      End of floor plan slider, skip slider

      Loomcroft Site plan

      Status

      Filter your results

      Development Phase
      House Type
      Bedrooms

      Am I eligible?

      Shared Ownership uses the following criteria to help people get a foot on the housing ladder:- Maximum annual household income of £80,000 

      One of the following statements must also be true: 

      • You’re a first-time buyer
      • You used to own a home but can’t afford to buy now
      • You’re forming a new household - typically after a relationship breakdown
      • You’re already part of the Shared Ownership scheme but want to move
      • You own a home and want to move but can’t afford the new home that meets your needs

      Use the Shared Ownership mortgage calculator to estimate the cost of buying this home

      Homes at this development are available on the New Shared Ownership Model.
      You can purchase between 10% and 75% of the property's full market value. Each home benefits from a 10 year repair period for essential repairs.
      You are able to buy more of your home through the Staircasing process, where you can purchase shares in increments of 5%. There is also the option of the 1% Gradual Staircasing Model enabling you to purchase smaller shares each year.

      Next Steps

      1

      Information

      For further information, please download our brochure below.

      2

      Enquire

      Please submit an enquiry to Platform Home Ownership and the dedicated Sales Consultant for the development will make contact with you.

      3

      Apply Now

      The Sales Consultant will send you the application form for you to complete. Please return the completed form back to us via email to sales@platformhg.com .

      4

      Affordability

      Upon receipt of your application and once approved we will refer you for an affordability assessment to determine the most affordable share for you.

      5

      Availability

      Once passed, we will then send you an offer letter for your chosen plot where possible


       

      Frequently asked questions

      Most buyers who can’t afford to buy a home outright can apply to buy through shared ownership.

      We may also be able to help if you need to move because of a relationship breakdown or if your work requires you to live in an area outside your price range.

      In order to buy through the Shared Ownership scheme, you must be able to demonstrate that you can afford and sustain home ownership. If you proceed with Shared Ownership you will be required to undertake an affordability assessment.

      You must meet our adverse credit policy, if you have a history of adverse credit you are unlikely to be accepted depending on individual circumstances.

      Shared owners still have to pay many of the usual costs involved in buying a home.

      Reservation fee

      We will ask you for a £250 deposit to reserve your chosen home. When the sale goes through we put this towards your purchase payments. However, we cannot refund it if the sale does not go through.

      Mortgage deposit and fees

      Most mortgage lenders will ask for a 5% or 10% deposit towards the price of the share you want to buy. They are also likely to charge a valuation fee and administration fees.

      Legal fees

      Solicitors’ charges can vary so it is best to get a few estimates. You will also have to pay Land Registry and local search fees, and may have to pay stamp duty depending on the value of the property.

      After you've moved in

      You also need to budget for the ongoing costs of owning a home.

      Mortgage repayments

      You will have to make monthly mortgage repayments to your lender. Depending upon the type of mortgage you have, these repayments may vary as interest rates change.

      Rent

      You pay a subsidised monthly rent to us on the share of your home which we own. The amount is reviewed on the 1st April each year.

      Service charges

      You will have to pay a small charge if your home has any facilities or communal areas which we maintain, such as shared entrance halls, lighting and grounds. Your service charge will also include your buildings insurance and your management fee.

      Household bills

      These include your council tax and utility bills for water, gas and electricity.

      Repairs

      We will arrange for any defects on new-build homes to be repaired during a set time period. After that time has elapsed, you will be responsible for arranging and paying for all repairs to your home.

      Home contents insurance

      We provide buildings insurance with the cost of your service charge but this does not cover your belongings. We strongly recommend you arrange your own home contents insurance.

      Much will depend on your other financial commitments and what property/share you want to buy. We don't want you to be overstretched, so we need to be sure that you can afford to pay your mortgage and rent. We look at each application individually and will advise you on your options.

      Shared ownership schemes are backed by government funding to help people on smaller incomes. So you will not qualify for most shared ownership schemes if your household income is less than £10,000 or more than £80,000 a year.

      On the property listings for some of our shared ownership homes, you will see that we state a local connection to the area is required.

      This generally applies in rural areas and small villages where land has been made available specifically for affordable housing to meet the needs of local people, rather than for private development.

      These are known as ‘rural exception sites’ or 'protected areas' and are controlled by ‘Section 106 Agreements’. They aim to help local people and families afford homes in the area where they grew up.

      The local connection criteria can vary between different developments, but is usually based on the following:

      applicant was born in the area and has lived there for a number of years

      applicant has permanently lived in the area for a number of years

      applicant used to live in the area for a number of years but had to move away because of the lack of affordable housing

      applicant has been permanently employed in the area for a number of years

      The number of years is usually between 2 and 5, although this differs by local authority

      Usually priority is given to applicants with a local connection to the parish. If there are still properties remaining, allocation will be opened up to surrounding parishes and then to the whole of the local authority area. This ensures that the homes are occupied by residents as local to the area as possible.

      If you want to find out more about the local connection criteria for a particular development, or check if you qualify, please email sales@platformhg.com

      Yes you can, once you have moved into your Shared Ownership property, providing you can afford it, you are able to buy more of your home through the process of Staircasing.

      Similar Properties

      Start of slider, skip slider

      Showing 1 of 10

      End of slider, skip slider